Proposals Reveal Two New Affordable Housing Properties For Seniors And A Charter School In Arvene, Queens

DLAC_Senior_Residence_DEF_Street_B_small.jpg

The Department of City Planning (DCP) is now reviewing proposals to construct two new affordable housing properties for seniors and a charter school in Arvene, Queens, a waterfront neighborhood on the Rockaway Peninsula. The proposed buildings will take shape along Beach 67th Street between Beach Channel Drive and Thursby Avenue.

The development team includes Brisa Builders and God’s Battalion of Prayer Properties, a religious organization that owns an existing church and the neighboring development sites where the proposed buildings could take shape. Think Architecture + Design was selected as architect of record. Before the project can break ground, DCP must approve zoning amendments to permit the construction of the residential buildings, which exceed the current allowable density and massing, and the charter school, a typology not currently included in the residential district.

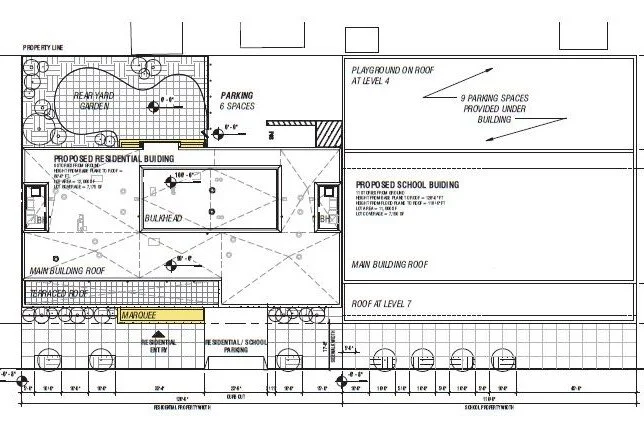
Both residential buildings will top out at nine stories, each comprising around 57,000 square feet. The 84 residences created will be reserved for low-income seniors. Drawings included in the proposal package illustrate a terraced roof deck, a rear yard garden, and a rear parking lot for six vehicles. The rendering shows a conventional modern design with a light gray façade and a darker gray exterior behind an eighth-floor setback. The ground floor features a bold yellow entranceway.

Architectural drawings illustrate new charter school and residential property along Beach 67th Street – Think Architecture

Architectural drawings illustrate new charter school and residential property along Beach 67th Street – Think Architecture

The charter school will top out at 11 stories and comprise approximately 72,000 square feet. Additional components include a rear playground on the roof of the fourth floor and nine sub-grade parking spaces. Renderings illustrate a playful modern design that also features a yellow entranceway, as well as a protruding bright blue rectangle on the fifth floor that breaks up the irregular window grid with a section of floor-to-ceiling glass. Above the sixth floor, the massing sets back to a five-story volume clad in dark gray panels with a gold-framed, all-glass section where the stairwell is located.

Preliminary massing diagram for new school and residential property along Beach 67th Street - Think Architecture

Preliminary massing diagram for new school and residential property along Beach 67th Street - Think Architecture

Rendering of new charter school along Beach 67th Street – Think Architecture

Rendering of new charter school along Beach 67th Street – Think Architecture

Section diagram of new charter school along Beach 67th Street - Think Architecture

Section diagram of new charter school along Beach 67th Street - Think Architecture

Proposals were submitted to DCP earlier this month in addition to an Environmental Assessment Statement. The latter report assessed potential impacts the project may have on the surrounding neighborhood and determined that the development has the potential for significant adverse impacts to surrounding traffic flow.

As specified by the City Planning Commission, measures to mitigate these effects must include the creation of new travel lanes on Beach Channel Drive, new crosswalks, the installation of bike lanes, and traffic signs surrounding the property, in addition to nearly a dozen more requirements. The developers will also need to request NYPD support for crossing guards at school commencement and dismissal.

If the zoning amendments are approved, the buildings could be completed by the end of 2022, following approximately 16-20 months of construction.

Read the original article here

Previous
Previous

Harlem's Historic RKO Hamilton Theater Could Be Reborn

Next
Next

New Community Center, Housing Coming to Carriage Grove