Brisa Builders
Founders Second Generation Executive Team Our History What We Do Press Events Recognitions College Scholarships Contact
Developer General Contractor Construction Mgmt Owner's Rep Faith-Based Development Propose a Project Work With Us
FoundersSecond GenerationExecutive TeamOur HistoryWhat We DoPressEventsRecognitionsCollege ScholarshipsContact
Brisa Builders
NYS/NYC MWB/E Certified
DeveloperGeneral ContractorConstruction MgmtOwner's RepFaith-Based DevelopmentPropose a ProjectWork With Us

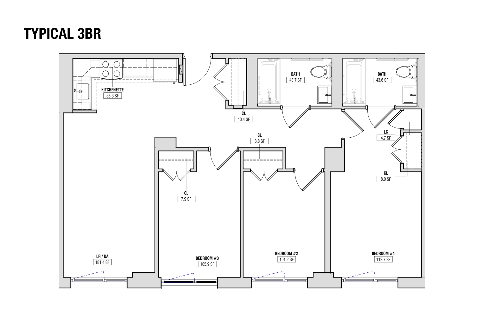
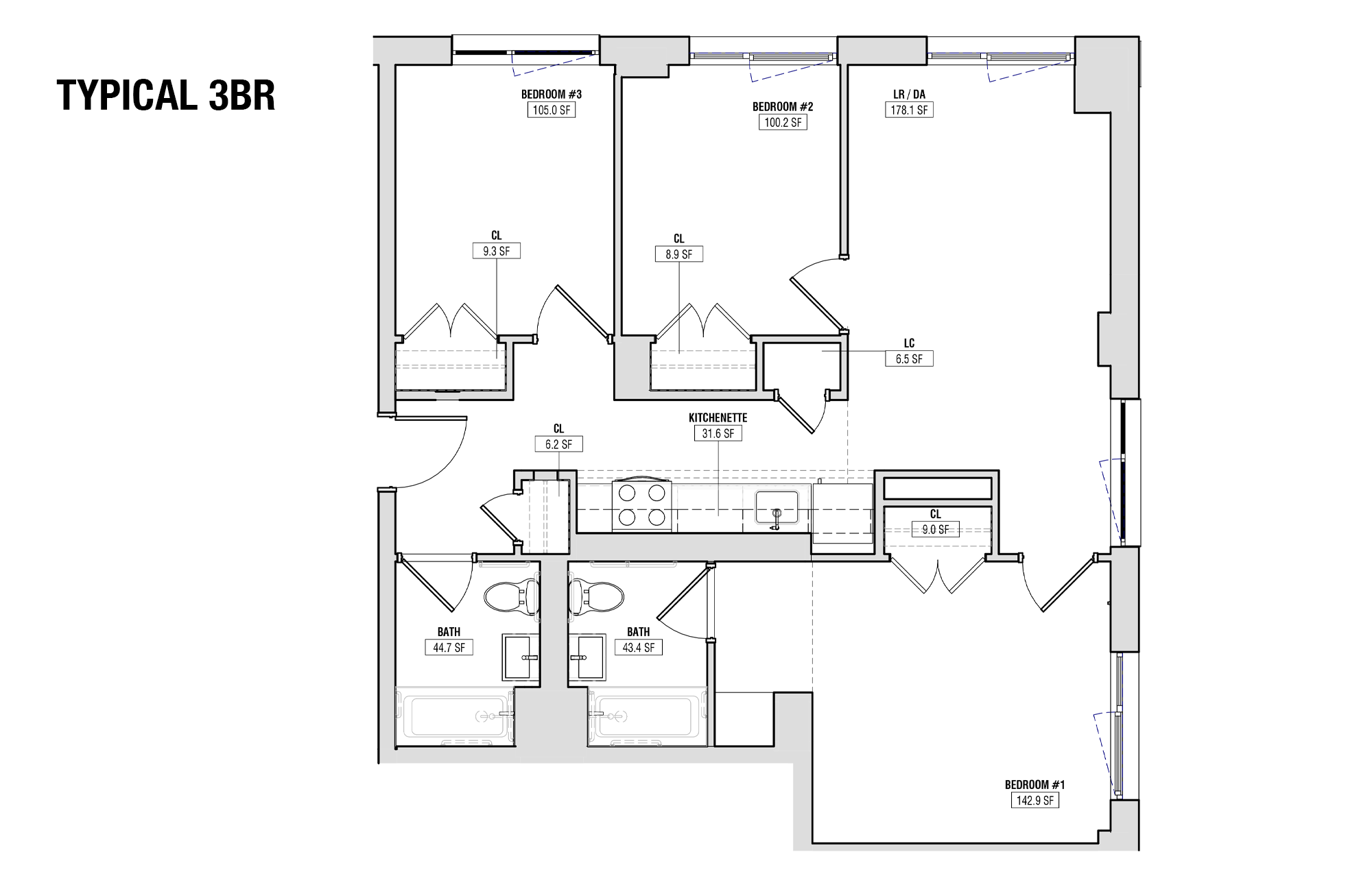
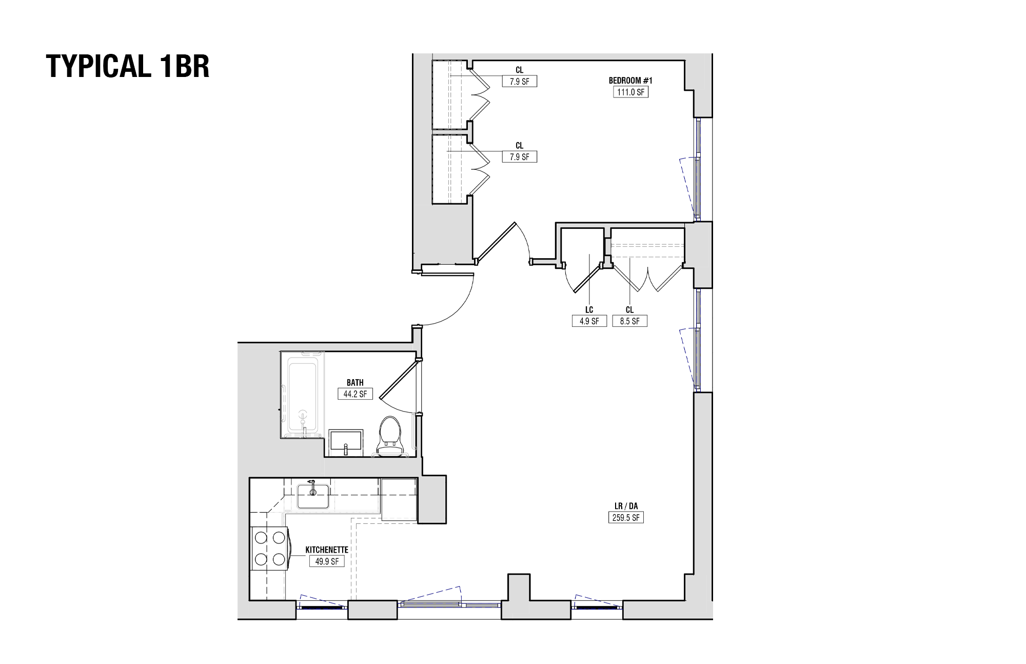
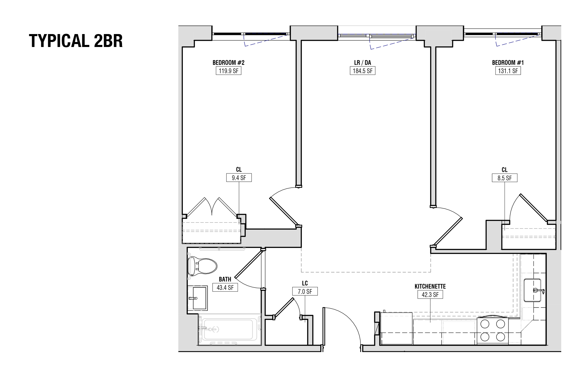
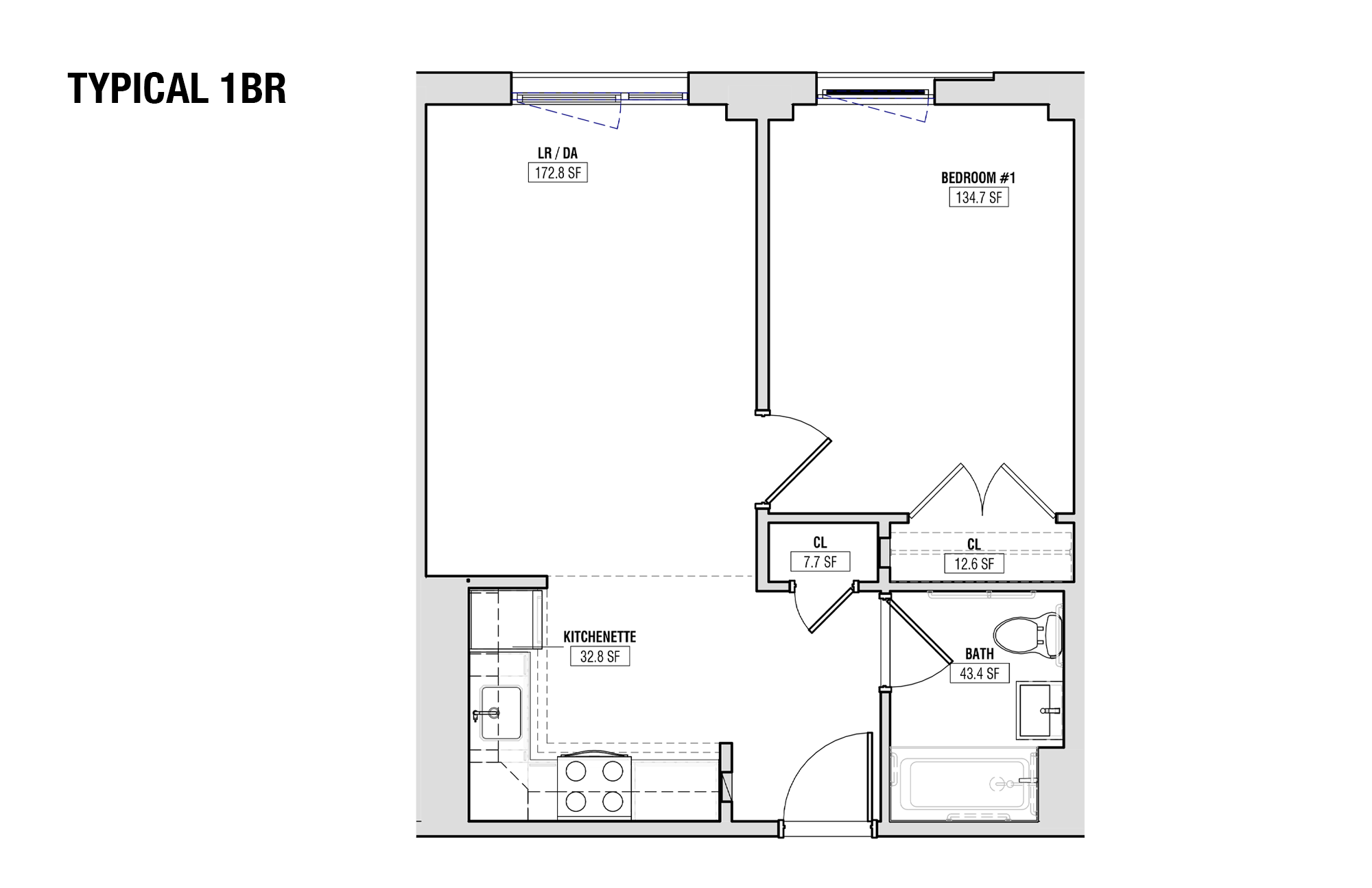
Glenmore Manor / B’Ville Entrepreneurial HUB

Winner of the Brownsville RFP - Site B

Selected Developer for Site B of the Brownsville Development Plan, proposal included the development of 233 units of affordable housing, commercial retail space and community facility to support  the development of future entrepreneurs.

RFP WINNER

Rendering--Brownsville-RFP.jpg
DSC09394-Enhanced-NRSMS.jpg
DSC09396-Enhanced-NRSMS.jpg
DSC09439SMS.jpg
DSC09367SMS.jpg
DSC09472-Enhanced-NRSMS.jpg
DSC09479-Enhanced-NRSMS.jpg
DSC09616SMS.jpg
DSC09401SMS.jpg
1.jpg
2.jpg
3.jpg
Rendering--Brownsville-RFP.jpg DSC09394-Enhanced-NRSMS.jpg DSC09396-Enhanced-NRSMS.jpg DSC09439SMS.jpg DSC09367SMS.jpg DSC09472-Enhanced-NRSMS.jpg DSC09479-Enhanced-NRSMS.jpg DSC09616SMS.jpg DSC09401SMS.jpg 1.jpg 2.jpg 3.jpg
Developer, Construction MgmtPaper Plus RocketApril 27, 2019
Facebook0 Twitter LinkedIn0 Reddit Tumblr Pinterest0 0 Likes
Previous

Bishop Philius and Helene Nicolas (BPHN ) Senior Residences

Developer, Faith-Based Development, Construction MgmtPaper Plus RocketApril 27, 2019
Next

Grace’s Place

DeveloperPaper Plus RocketApril 26, 2019
Brisa Builders Corp.
2009 Flatbush Avenue,
Brooklyn, NY, 11234,
United States
718-774-6103 info@brisabuilders.com
Hours
Mon 9am - 5pm
Tue 9am - 5pm
Wed 9am - 5pm
Thu 9am - 5pm
Fri 9am - 5pm
DeveloperGeneral ContractorConstruction MgmtOwner's RepFaith-Based DevelopmentPropose a projectWork With UsPrivacy Policy

© 2025 Brisa Builders Branding and website design by Paper plus Rocket